Your wastewater - who cares? The answer is clear: the municipal wastewater company. An image film sheds light on its work and brings "underground" topics to light.
At the invitation of the municipal integration manager Marei-Liselotte Radke, the Integration Network has now met at the Neubeckum leisure centre. The stakeholders from various areas want to work together to create the best possible conditions for the sustainable integration of new arrivals.
The Federal Railway Authority is revising its noise action planning for main railway lines in accordance with the Environmental Noise Directive in the fourth round. Now it's up to the citizens.
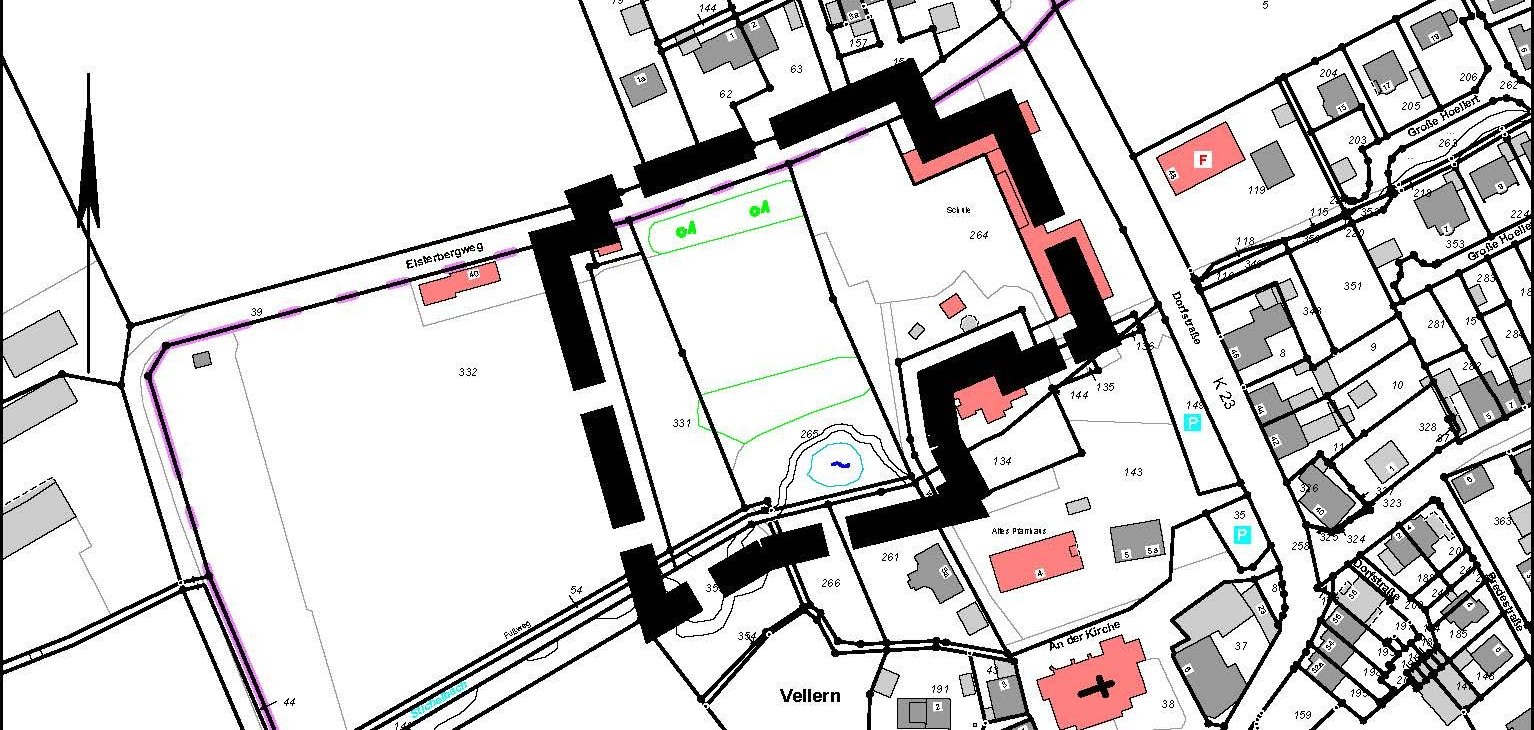
How should the village square in Vellern look and be used in the future? All citizens of Vellern are invited to help shape the development of the village square in Vellern.
The town of Beckum hosted the autumn conference of senior building officials in the Münster administrative district of the Association of Towns and Municipalities.
A festive highlight at the beginning of 2024 awaits music lovers in Beckum: on Sunday, 21 January 2024 at 5:00 pm, the city of Beckum, with the kind support of Sparkasse Beckum-Wadersloh, invites you to the traditional New Year's Concert in the Beckum Municipal Theatre.
A bright red planter now shines in the November grey at the train station. It belongs to the Neubeckum trade association and was purchased with funds from the Neubeckum town centre development fund.
Due to a technical fault, no external emails could be delivered to the city's email addresses between around 3 p.m. on 14 November and around 10 a.m. on 15 November.
On 19 November, the Beckum indoor pool will once again open its doors to all women and girls from 5 to 8 pm. Swimming will be supervised by female staff. The regular admission prices apply.
2,200 square metres of asphalt, 1,700 square metres of concrete block paving and 530 square metres of green space: the eastern section of Dechant-Schepers-Straße has now been completed after a 5-month construction period.
The Volksbund Deutsche Kriegsgräberfürsorge e. V. Ortsverband Beckum (German War Graves Commission), in cooperation with the town of Beckum and the shooting clubs, soldiers' associations, war victims' associations and other organisations, will be holding commemorative ceremonies on Remembrance Day on Sunday, 19 November.